Logo der Firma WhitespringCorp

HARDTURMSTR 86 8005 ZÜRICH

Foto: Duschbad Haus Zundra

3.5-ZIMMER-WOHNUNG

Diese Wohnung liegt dirkt an der Skipiste Bolgen und hat den Charme eines Bergchalet. Sie haben einen wundervollen Blick auf Davos-Platz und den verschneiten Wald. Eine helle und aussichtsvolle Wohnung mit offnen Räumen und edlen und pflegeleichten Materialien. Wer hier angekommen ist, will gar nicht mehr nach hause.

Foto: Duschbäder, Haus Cheasa Zundra Davos
Wohnzimmer Haus Chesa Bolgen
Foto: Duschbäder, Haus ImPark, Davos
Essbereich Haus Chesa Bolgen
Foto: Wohn- und Essraum, Haus ImPark, Davos
Küche Haus Chesa Bolgen
Foto: Wohn- und Essraum, Haus ImPark, Davos
Gute Aussichten Haus Chesa Bolgen
Foto: Duschbäder, Haus ImPark, Davos
chlafzimmer Haus Chesa Bolgen
Foto: Duschbäder, Haus ImPark, Davos
Duschbad 2 Haus Chesa Bolgen
Duschbad 1 Haus Chesa Bolgen
Foto: Duschbäder, Haus ImPark, Davos
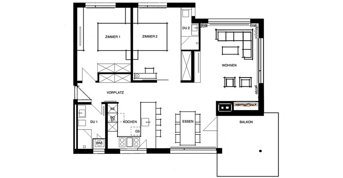
Grundriss 3.5-Zimmer-Wohnung Haus Chesa Bolgen

Die Wohnung im Haus Chesa Bolgen hat einen offenen Grundriss und zum Schlafzimmer hin eine Schiebetüre, was für Helligkeit und Übersicht sorgt. Weitere Informationen finden Sie unter: Homegate
Weiter zu den Angeboten:
2.5-Zimmer-Wohnung Haus im Park 3.5-Zimmer-Wohnung Haus Chesa Zundra

 

Symbol: Telefonnummer