Logo der Firma WhitespringCorp

HARDTURMSTR 86 8005 ZÜRICH

Foto: Duschbad Haus Zundra

3.5-ZIMMER-WOHNUNG

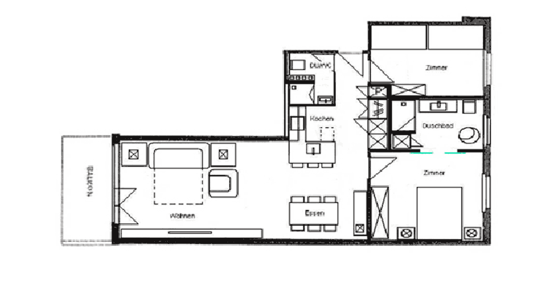
Die private Wellness-Zone erreichen Sie direkt aus dem Schlafzimmer. Für die gewünschte Privatsphäre lässt sich die Glasscheibe schliessen. Die Dusche mit Massagedüsen und der Design Glas-Waschtisch sind eine wohlfühl Oase. Die ganze Wohnung wurde umgebaut und der neu gestaltete Grundriss betont den grosszügigen Wohn-Essbereich mit praktischer Küchenbar. Die moderne Küche ist offen gestaltet und präsentiert sich als schwarze Perle auf luxuriösem Eichenparkett.

Haus Chesa Zundra, Davos-Dorf

Foto: Duschbäder, Haus Cheasa Zundra Davos
Küche Haus Chesa Zundra
Foto: Duschbäder, Haus ImPark, Davos
Schlafzimmer Haus Chesa Zundra
Foto: Wohn- und Essraum, Haus ImPark, Davos
Wohnzimmer Haus Chesa Zundra
Foto: Duschbäder, Haus ImPark, Davos
Duschbad 1 Haus Chesa Zundra
Kinderzimmer Haus Chesa Zundra
Foto: Duschbäder, Haus ImPark, Davos
Grundriss 3.5-Zimmer-Wohnung Haus Chesa Zundra

Die Wohnung im Haus Chesa Zundra wurde umgebaut und ein neuer Grundriss gestaltet. Weitere Informationen finden Sie unter: Homegate